The Sobha World City Floor Plan is a modern 1, 2, 3, and 4 BHK ultra-luxury apartment across 18 high-rise towers with Ground + 3B + 54 upper floors. The project offers 5,400 premium apartments with unit sizes starting from 650 sq. ft. to 2,495 sq. ft., designed for modern urban lifestyles.
A floor plan helps buyers understand the apartment's layout and room sizes. It shows the position of bedrooms, living areas, kitchens, bathrooms, and balconies. The plan gives a clear top view and helps buyers visualize the final living space.
The floor plans at Sobha World City Hoskote are designed for professionals and families in East Bangalore. The layouts focus on efficient space use, natural light, good ventilation, and privacy. The apartment is planned for comfortable daily living with a touch of luxury.
Types of Floor Plans
Sobha World City Whitefield offers the following configurations:
To know a more detailed floor plan of all the apartments, buyers can download the Sobha World City Floor Plan PDF from this website.
Unit types and sizes
| Unit Type | Size Range |
|---|---|
| 1 BHK | 650 to 777 Sqft |
| 2 BHK | 1150 to 1350 sq ft |
| 3 BHK | 1445 to 1890 sq ft |
| 4 BHK | 1915 to 2495 sq ft |
Design philosophy & Zone covers
The Sobha World City Hoskote has a total land area of 48 acres, with designated areas for green spaces, water bodies, gardens, and construction. It makes the township peaceful and relaxing.
The Residents can enjoy wide open areas, landscaped gardens, walking pathways, and water features. The project planning philosophy is Modern and Luxury Township. Mainly, it focuses on luxury, lifestyle, and strategic growth, with premium amenities such as
- Mega clubhouse
- Indoor & Outdoor sports courts
- Swimming Pools
- Garden areas
- Kids' play areas
- Senior Citizen zone
- Workspace
Types of Floor Plan
Sobha World City Bangalore offered 4 types of floor plans in this township.
- Sobha World City 1 BHK Floor Plan
- Sobha World City 2 BHK Floor Plan
- Sobha World City 3 BHK Floor Plan
- Sobha World City 4 BHK Floor Plan
1 BHK floor plan
The Sobha World City offers a 1 BHK floor plan. It is a good choice for small families and working professionals.
1 BHK apartments - 650 sq ft to 777 sq ft
The 1 BHK size ranges from 650 sq ft to 777 sq ft. The layout includes,
- Foyer
- Living and dining area
- 1 bedroom
- 1 bathroom
- Kitchen with utility
- 1 balcony
The living room usually connects to a small balcony or utility area. Some layouts place the kitchen next to the living room, often with an open-concept design. Efficient designs focus on good ventilation and storage to make the small space feel larger.
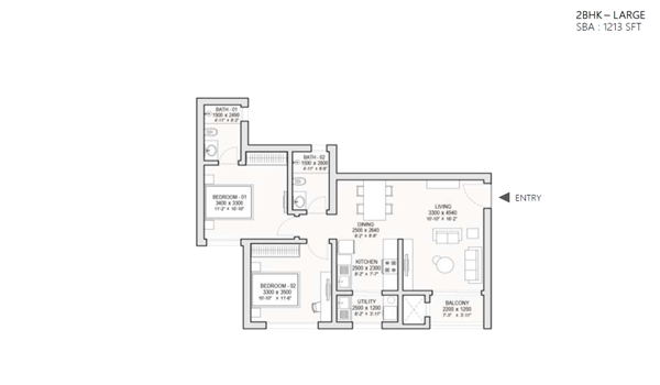
2 BHK floor plan
The Sobha World City offers a 2 BHK floor plan that offers more space and privacy for small families.
2 BHK Premium apartments - 1150 sq ft to 1350 sq ft
The 2 BHK size ranges from 1150 sq ft to 1350 sq ft. The layout includes,
- Foyer
- Living and dining area
- 2 bedrooms
- 2 bathrooms
- Kitchen with utility
- 2 balconies
The floor plan for the Sobha World City 2 BHK apartment is designed for a comfortable, practical living experience. The layout includes a clear separation between living spaces and private areas. It helps families enjoy privacy while also having enough space to spend time together. The design focuses on smooth movement between rooms and balanced use of space.
3 BHK floor plan
The Sobha World City offers a 3 BHK floor plan that offers more space and privacy for growing families. The project has 2 variants of 3 BHK apartments, such as
- 3 BHK Smart apartment - 1445 sq ft to 1625 sq ft
- 3 BHK Luxe apartment - 1675 sq ft to 1890 sq ft
The 3 BHK size ranges from 1445 sq ft to 1890 sq ft. The layout includes,
- Foyer
- Living and dining area
- 3 bedrooms
- 3 bathrooms
- Kitchen with utility
- 3 balconies
The kitchen in the Sobha World City 3 BHK floor plan is both functional and stylish. It comes with a separate utility area, which adds extra convenience for laundry and storage.
The apartment features three spacious bedrooms, each designed as a peaceful retreat after a long day. The bedrooms are well-ventilated and receive ample natural light through large windows. They are positioned to assure privacy for every family member, making the home comfortable for both adults and children.
In addition to the bedrooms, the flat includes three modern bathrooms, ensuring privacy and ease of use for the entire family. The bathrooms are fitted with the best quality fixtures and finishes, adding to the overall elegance of the apartment.
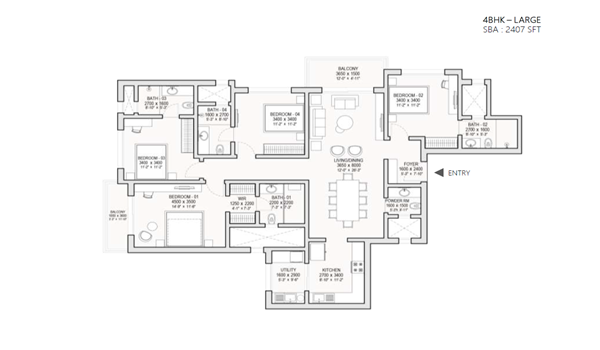
4 BHK floor plan
The Sobha World City offers a 4 BHK floor plan with more space and privacy for large and joint families. The project has 2 variants of 4 BHK apartments, such as
- 4 BHK Smart apartments - 1915 sq ft to 2255 sq ft
- 4 BHK Grand apartments - 2365 sq ft to 2495 sq ft
The 4 BHK size ranges from 1915 sq ft to 2495 sq ft. The layout includes,
- Foyer
- Living and dining area
- 4 bedrooms
- 4 bathrooms
- Kitchen with utility
- 3 balconies
These spacious 4 BHK apartment units at Sobha World City feature large living spaces and master bedrooms. From the balconies, residents can enjoy beautiful views of the complex facilities and gardens. These spacious apartments give residents the feeling of living in a large, open space with plenty of room to roam. The 4 BHK apartments at Sobha World City can be customized to suit your needs. These apartments also offer an extra room for a study or a maid's room.
The Sobha World City Bangalore project follows the Vaastu-compliant floor plans for positive energy for living. The direction of the apartment entrance is carefully planned to ensure good energy flow. The apartment's kitchen, bedroom, and toilet in Sobha World City are designed and planned according to Vaastu principles to support comfort, balance, and peace in everyday life.
The Sobha World City is designed with good sound buffering to reduce outside noise. Private areas, such as bedrooms, are located away from common spaces. This smart layout ensures more privacy, less disturbance, and a calm, comfortable living experience for every family.
Sobha World City Tower Plan
The project planned 18 High-Rise towers with Ground + 3B + 54 upper floors configurations. Each tower has 54 floors, each designed for safety, comfort, and proper use of space. The height setup provides good ventilation, natural light, and a balanced skyline across the site. In the apartments, bedrooms are designed for usability, giving enough space for beds, wardrobes, and walking.
Corner units & View-Oriented Floor Plans
Corner units in Sobha World City Whitefield offer good airflow, natural light, and ventilation. View-facing apartments offer stunning vistas, a peaceful atmosphere, and a brighter living space. These components make your home feel more spacious, comfortable, and connected to nature. It is enhancing your overall living experience.
Maintenance Ease of Floor Plans
The Sobha World City provides easy plumbing access in all homes. It is making maintenance and repairs simple and quick. Pipes and fixtures are thoughtfully placed to reduce hassle and avoid damage to walls or floors. Sobha World City is planned for long-term growth and investment. Over time, new buildings, parks, and amenities will be added in phases. The open spaces, roads, and facilities are planned for future needs.
How differently are the floor plans of Sobha World City designed?
- 1, 2, 3, and 4 BHK layouts varying from 650 sq. ft. to 2495 sq. ft.
- No housing units facing each other for privacy
- Balconies facing green amenities for a peaceful viewing
- Floor plans are aligned to Vaastu principles
- Planning with zero dead corners
- The apartments are well ventilated.
- The dining area will face the balcony.
- The apartment has immense corridors.
- They are designed for uninterrupted visual connectivity, where views are greener.
Sobha World City Reviews
The Sobha World City Hoskote offers a range of floor plans to suit families who want to enjoy luxury at a reasonable price. The rating for Sobha World City is 4.8/5. The comfort and space promised by the project attract buyers to purchase apartments that meet their requirements. The residents enjoy peaceful surroundings, open views, and healthier living. It makes the township comfortable, spacious, and ideal for a relaxed, high-quality lifestyle.






